Transformez Votre Maison avec LEOPOLD CONSULTANT
Votre Agrandissement Clé en Main
Transformez votre Habitat en Ile de France
Agrandir sa maison est un projet techniquement complexe qui implique souvent de toucher à la structure même du bâti (charpente, murs porteurs, fondations). Contrairement à un artisan isolé, LEOPOLD CONSULTANT pilote l’ensemble de votre chantier.
En tant que contractant général en Ile de France basé à Conflans-Sainte-Honorine et Pontoise nous sommes votre interlocuteur unique et responsable. Nous orchestrons l’ensemble des corps d’état (maçons, charpentiers, couvreurs) pour garantir une fluidité parfaite et le respect strict des délais annoncés.
Notre expertise locale est un atout décisif : nous maîtrisons les spécificités des PLU (Plans Locaux d’Urbanisme) des Hauts de seines (92) du Val-d’Oise (95) et des Yvelines (78). Que vous soyez en zone pavillonnaire ou en centre-ville historique, nous gérons pour vous toutes les démarches administratives, du permis de construire à la déclaration préalable de travaux.
Nos prestations s’adressent aux particuliers propriétaires qui recherchent une solution fiable et sans stress pour agrandir et optimiser leur espace de vie tout en bénéficiant d’un accompagnement expert.
✔ Un interlocuteur unique pour piloter l’ensemble du projet.
✔ Un gain de temps et une tranquillité absolue grâce à une gestion optimisée des travaux.
✔ Un suivi rigoureux des étapes assuré par un maître d’œuvre qualifié.
✔ Une décoration sur-mesure conçue par une décoratrice d’intérieur.
✔ Respect strict des réglementations en urbanisme et en construction.
Nos Prestations Comprennent
1. Études et Conception du Projet
Étude de sol préalable pour garantir la faisabilité et la stabilité du projet.
Étude de faisabilité et de structure réalisée par un BET structure.
Conception architecturale sur-mesure par un architecte expérimenté.
Dépôt et obtention du permis de construire, en conformité avec les règles d’urbanisme.
2. Travaux de Transformation et d’Aménagement
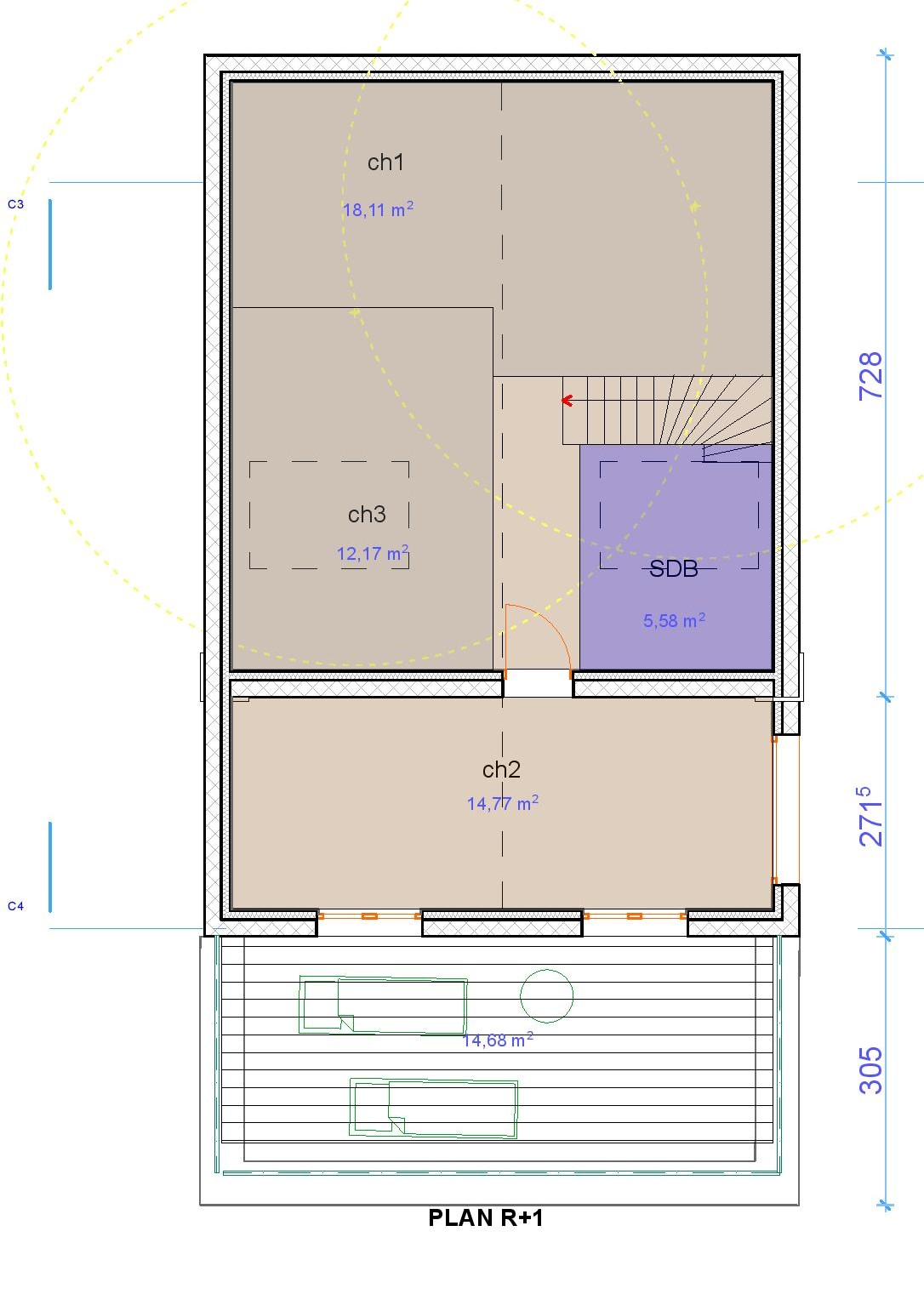
Extension de maison : création d’une nouvelle pièce, agrandissement du séjour, ajout d’un garage ou de plusieurs pièces.
Rehaussement de toiture : ajout d’un étage pour optimiser la surface habitable.
Modification de l’agencement intérieur pour améliorer la circulation et le confort.
Travaux de gros œuvre et second œuvre, incluant la maçonnerie, la charpente, l’isolation et les finitions.
3. Décoration et Personnalisation de Votre Intérieur
Sélection des matériaux et finitions haut de gamme.
Choix des couleurs, revêtements et mobiliers adaptés à votre style.
Aménagement fonctionnel et harmonieux de vos nouveaux espaces.
Les Atouts d’un Contractant Général pour Votre Projet
- Gestion globale et optimisée : un seul prestataire pour piloter tous les corps de métier.
- Respect des délais et du budget grâce à un suivi rigoureux.
- Garantie de conformité aux normes de construction et d’urbanisme.
- Coordination fluide des intervenants pour éviter les retards et imprévus.
- Accompagnement personnalisé à chaque étape du projet.
Pourquoi Choisir LEOPOLD CONSULTANT ?
Une expertise reconnue dans l’extension, le rehaussement et la rénovation de maison.
Un accompagnement clé en main pour une transformation sereine et sans stress.
Intervention en Île-de-France, dans le respect strict des normes du bâtiment.
-
Nos Expertises en Extension et Rénovation en Île-de-France
D’abord, nous sécurisons vos projets d’agrandissement grâce à une ingénierie de standing. Ensuite, découvrez nos solutions sur mesure pour valoriser votre patrimoine immobilier dans les Yvelines et le Val d’Oise.
Architecture & Maîtrise d’Œuvre (78, 92, 95)
-
|Architecte & Maître d’Œuvre |Architecte Yvelines (78) |Architecte Conflans |Architecte Val d’Oise (95) Architecte Pontoise -
|Maître d’Œuvre Bâtiment |Maître d’Œuvre Yvelines (78) |Maître d’Œuvre Conflans |Maître d’Œuvre Val d’Oise (95) Maître d’Œuvre Pontoise -
|Économiste de la Construction |Économiste Yvelines (78) Économiste Val d’Oise (95)
Extension de Maison dans les Yvelines (78)
-
|Extension & Rehaussement (Page Mère) |Extension Yvelines (78) Extension Conflans-Sainte-Honorine -
|Andrésy |Chambourcy |Chatou |Croissy-sur-Seine |Fourqueux |Houilles L’Étang-la-Ville -
|Le Chesnay-Rocquencourt |Le Mesnil-le-Roi |Le Pecq |Louveciennes |Maisons-Laffitte Marly-le-Roi -
|Orgeval |Poissy |Saint-Germain-en-Laye |Sartrouville |Triel-sur-Seine Verneuil-sur-Seine
Extension & Rehaussement dans le Val d’Oise (95)
-
|Extension & Rehaussement Val d’Oise |Architecte Extension 95 |Pontoise Enghien-les-Bains -
|Franconville |Herblay-sur-Seine |Montmorency |Saint-Prix Saint-Leu-la-Forêt -
|Soisy-sous-Montmorency |Taverny |Eaubonne |Ermont |Domont |Osny Auvers-sur-Oise
Ingénierie Structurelle & Études de Sols
-
|Étude de Sol Île-de-France |Étude de Sol Val d’Oise |Étude de Sol Yvelines (78) Étude de Sol Conflans -
|Bureau d’Études Structure IDF |Structure Yvelines (78) |Structure Conflans Étude Structure Val d’Oise -
|Reprise en Sous-Œuvre (Général) |Reprise Sous-Œuvre Val d’Oise |Reprise Sous-Œuvre Pontoise |Reprise Sous-Œuvre Yvelines (78) Reprise Sous-Œuvre Conflans
Rénovation de Standing & Aménagement
-
|Rénovation Maison (78, 92, 95) |Rénovation Maison Val d’Oise |Rénovation Maison Pontoise |Rénovation Maison Yvelines Rénovation Maison Conflans -
|Rénovation Appartement (78, 92, 95) |Rénovation Appartement Yvelines Rénovation Appartement Conflans -
|Cuisine sur Mesure |Cuisine Yvelines (78) |Cuisine Conflans |Cuisine Val d’Oise (95) Cuisine Pontoise -
|Rénovation Salle de Bain |Salle de Bain Val d’Oise |Salle de Bain Pontoise |Salle de Bain Yvelines Salle de Bain Conflans
-